
Avalon Visionary
The Avalon Visionary delivers an intimate setting for 128 passengers, with two full decks of suites featuring wall-to-wall panoramic windows that transform the living space into a unique open-air balcony. With 200 square feet, Panorama Suites are more than 30% larger than the industry standard, giving you the rare opportunity to wake each morning to the changing scenery. Onboard amenities include complimentary computer use in public areas and Wi-Fi access, a fitness centre, and a spacious Sky Deck with premium lounge chairs, shade system, whirlpool, and the delightful Sky Grill.
Ship Calendar
Ship Details
Year Built
2012
Capacity
128
Meeting Rooms
No
Elevators
1
Casino
No
Registry
N/A
Restaurants
1
Disco
No
Tonnage
N/A
Bars
1
Fitness Center
Yes
Cabins
64
Pools
N/A
Children's Program
No
Wheelchair Accessible Cabins
N/A
Theaters
No
Internet Cafe
Yes
Shops
No
Library
No
Spa
Yes
Ship Categories
Royal Suite
Royal Suite - 300 sq. ft. Wall-to-Wall Panoramic Window with Open-Air Balcony Open-Air Balcony with full 6-person seating area Full shower with glass door Writing desk Vanity Bed Toilet Sofa Coffee table Double sinks

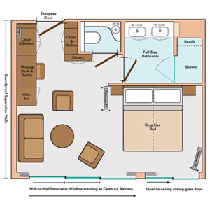
Panorama Suite
Located on the Royal Deck & Sapphire Deck (Forward & AFT)Suite features include:Comfort Collection BedsEgyptian super-combed cotton linensSoft & firm pillowsChoice of bed configurationBedside tables with reading lampsL'Occitane bath productsEasy under-bed luggage storageAlarm clockDirect-dial telephoneWell-stocked minibarIn-room safeElegant, contemporary designMarble countertops in bathroomUSB Ports6-person sitting areaWriting desk and chairSofaLuxurious mattress toppersEuropean-style duvetsExtra blanketsNightly turn-down serviceHairdryerSpacious 3-door closets with shelves for ample storageFlatscreen satellite TV with English-speaking channels & over 100 free movie optionsMake-up mirrorBathrobes & slippersComplimentary bottled waterIndividual climate controlLarge mirror in bathroomComplimentary Wi-FiWall-to-Wall Panoramic Window with Open-Air BalconyFull shower with glass doorVanity and lighted makeup mirrorCoffee table

Deluxe Stateroom
Located on the Indigo Deck (Forward & AFT)Suite features include:Comfort Collection BedsEgyptian super-combed cotton linensSoft & firm pillowsChoice of bed configurationBedside tables with reading lampsL'Occitane bath productsEasy under-bed luggage storageAlarm clockBathrobes & slippersComplimentary bottled waterIndividual climate controlLarge mirror in bathroomUSB PortsFull shower with glass doorVanity and lighted makeup mirrorLuxurious mattress toppersEuropean-style duvetsExtra blanketsNightly turn-down serviceHairdryerSpacious 3-door closets with shelves for ample storageFlatscreen satellite TV with English-speaking channels & over 100 free movie optionsDirect-dial telephoneWell-stocked minibarIn-room safeElegant, contemporary designComplimentary Wi-FiTwo windowsWriting desk and chair
