
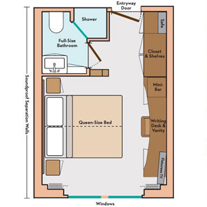
The Avalon Tapestry II is a true haven on the river - two full decks of Panorama Suites with Wall-to-Wall Panoramic Windows that transform∘ the living space into a unique Open-Air Balcony. With 200 square feet, Panorama Suites are more than 30% larger than the industry standard, giving you the rare opportunity to wake each morning to enchanting scenery and fresh breezes. Onboard amenities and services include complimentary computer use in public areas and free Wi-Fi access, a Fitness Center with state-of-the-art equipment, an elevator, and a spacious Sky Deck with shade system, whirlpool, deck games, and the delightful Sky Bistro∘ for al-fresco lunches of light grill fare.
Ship Calendar
Destination | Oct | Nov | Dec | Jan 2026 | Feb | Mar | Apr | May | Jun | Jul | Aug | Sep |
---|---|---|---|---|---|---|---|---|---|---|---|---|
Europe | -- | -- | -- | -- | -- | |||||||
River Cruises | -- | -- | -- |
Ship Details
Ship Categories


