
Avalon Illumination
Avalon Illumination accommodates 166 passengers. This gorgeous ship features two full decks of Panorama Suites with wall-to-wall panoramic windows∘ that transform into a unique open-air balcony. With 200 square feet, Panorama Suites are more than 30% larger than the industry standard, affording you the unique opportunity to wake each morning facing the splendid passing scenery. Onboard amenities include an alternative light dining option in the Panorama Bistro, a fitness centre, complimentary Wi-Fi access, and a spacious Sky Deck∘ with premium lounge chairs, whirlpool, and light al fresco lunches at the Sky Bistro.
Ship Calendar
Destination | Oct | Nov | Dec | Jan 2026 | Feb | Mar | Apr | May | Jun | Jul | Aug | Sep |
---|---|---|---|---|---|---|---|---|---|---|---|---|
Europe | -- | -- | -- | -- | -- | -- | -- | -- | -- | |||
River Cruises | -- | -- | -- |
Ship Details
Year Built
2013
Capacity
166
Meeting Rooms
No
Elevators
1
Casino
No
Registry
Switzerland
Restaurants
3
Disco
No
Tonnage
1,303
Bars
1
Fitness Center
Yes
Cabins
83
Pools
N/A
Children's Program
No
Wheelchair Accessible Cabins
N/A
Theaters
No
Internet Cafe
Yes
Shops
No
Library
Yes
Spa
Yes
Ship Categories
Royal Suite
Royal Suite - 300 sq. ft.
Comfort Collection Beds
Deluxe beds with memory foam mattress toppers
Egyptian super-combed cotton linens
European-style duvets
Choice of soft or firm pillows
Extra blankets
Choice of bed configuration
Nightly turn-down service
Bedside tables with reading lamps
Hair dryer
L'Occitane bath amenities
Spacious 3-door closets with shelves for ample storage
Easy under-bed luggage storage
Flatscreen satellite TV with movie channel
Alarm clock
Make-up mirror
Direct-dial telephone
Bathrobes & slippers
Well-stocked minibar
Complimentary bottled water
In-room safe
Individual climate control
Elegant, contemporary design throughout
Large mirror in bathroom
Marble countertops in bathroom
Complimentary Wi-Fi
Complimentary use of iPad mobile digital devices
Wall-to-Wall Panoramic Window with Open-Air Balcony
Open-Air Balcony with full 6-person seating area
Full shower with glass door
Writing desk
Vanity
Bed
Toilet
Sofa
Coffee table
Double sinks

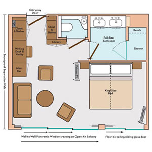
Panorama Suite
Located on the Royal Deck & Sapphire Deck (Forward & AFT)Suite features include: Comfort Collection BedsEgyptian super-combed cotton linensSoft & firm pillowsChoice of bed configurationBedside tables with reading lampsL'Occitane bath productsEasy under-bed luggage storageAlarm clockDirect-dial telephoneWell-stocked minibarIn-room safeElegant, contemporary designMarble countertops in bathroomUSB Ports6-person sitting areaWriting desk and chairSofaLuxurious mattress toppersEuropean-style duvetsExtra blanketsNightly turn-down serviceHairdryerSpacious 3-door closets with shelves for ample storageFlatscreen satellite TV with English-speaking channels & over 100 free movie optionsMake-up mirrorBathrobes & slippersComplimentary bottled waterIndividual climate controlLarge mirror in bathroomComplimentary Wi-FiWall-to-Wall Panoramic Window with Open-Air BalconySMFull shower with glass doorVanity and lighted makeup mirrorCoffee table

Deluxe Stateroom
Located on the Indigo Deck (Forward & AFT) Suite features include: Comfort Collection BedsEgyptian super-combed cotton linensSoft & firm pillowsChoice of bed configurationBedside tables with reading lampsL'Occitane bath productsEasy under-bed luggage storageAlarm clockBathrobes & slippersComplimentary bottled waterIndividual climate controlLarge mirror in bathroomUSB PortsFull shower with glass doorVanity and lighted makeup mirrorLuxurious mattress toppersEuropean-style duvetsExtra blanketsNightly turn-down serviceHairdryerSpacious 3-door closets with shelves for ample storageFlatscreen satellite TV with English-speaking channels & over 100 free movie optionsDirect-dial telephoneWell-stocked minibarIn-room safeElegant, contemporary designComplimentary Wi-FiTwo windowsWriting desk and chair
